Projects

Godrej Reserve

Concept 1 - Volume Play

Details

PLOT SIZE=30’0” X 50’0”
SITE AREA=1500 SFT
BUILT UP AREA=2404 SFT
FSI ACHEIVED=1.6
SITE FACING EAST
REQUIREMENT = 2.5 BHK

Concept

• VERTICAL CONNECTION BY DOUBLE HEIGHT COMMON SPACES
• VISUAL CONNECTION IS ESTABLISHED
• VISUAL INTEREST IN BUILDING MAKES BUILDING UNIQUE
• INCREASE IN VOLUME MEANS INCREASE IN LIGHT AND AIR ALLOWED INSIDE
• GLASS FACADE LETS PLENTY OF AIR TO STREAM IN ADDING AN ADVANTAGE TO VOLUME CREATED

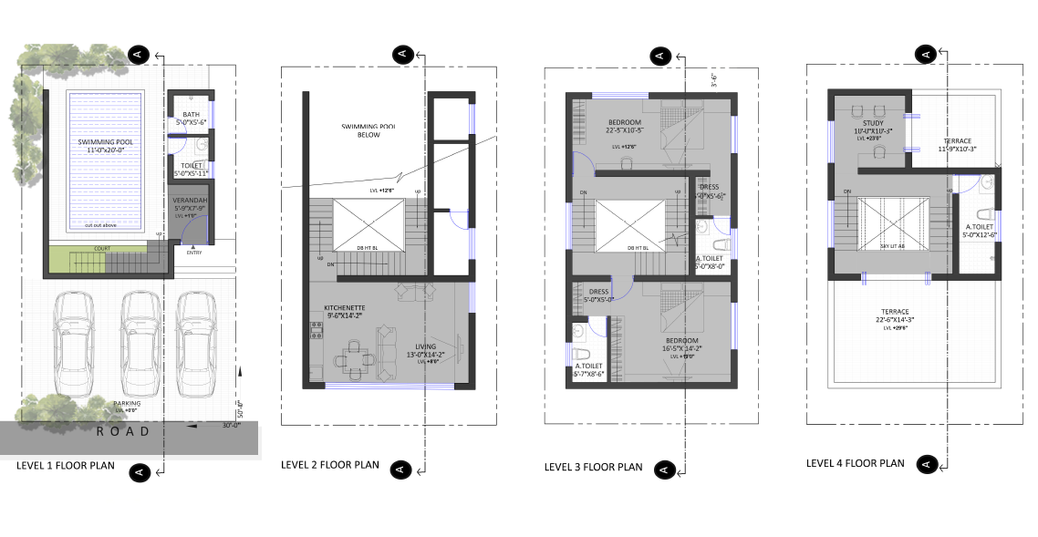
Concept 2 - Water - A Crucial Contributor to Atmosphere

Details

PLOT SIZE=30’0” X 50’0”
SITE AREA=1500 SFT
BUILT UP AREA= 2456 SFT
FSI ACHEIVED=1.63
SITE FACING EAST
REQUIREMENT = 2.5 BHK

Concept

• WATER-ADD MOVEMENT AND SOUND TO SPACE
• POOL WITH EXTERNED GARDEN CREATES A SIT-OUT SPACE TO RELAX
• MULTI LEVELS WITH CENTRAL CUTOUT ALONG THE STAIRS INCREASE THE VISIBILITY OF
WATER AND ITS REFLECTION IN ALL LEVELS
• STREAM IN AIR AND ESCAPE OF HOT AIR IS THROUGH CENTRAL SKY LIGHT
• THE REFLECTION ON THE WATER THROUGH THE SKY LIGHT ELONGATES THE BUILDING AND
HIGHLIGHTS THE CENTRAL PART OF THE BUILDING.

Concept 3 - Wind Tunnel

Details

PLOT SIZE=30’0” X 60’0”
SITE AREA=1800 SFT
BUILT UP AREA= 1572 SFT
FSI ACHEIVED= 0.87
SITE FACING EAST
REQUIREMENT = 2.5 BHK

Concept

• WIND TUNNELS CREATED IN BETWEEN EACH BLOCK BRING IN NATURAL COOL AIR INTO THE
BUILDNG
• THESE ARE TREATED AS COURTYARDS BUFFER SPACE
• TERRACOTTA USED AT THE EDGES OF THE WIND TUNNEL TO NATURALLY COOL THE AIR COMING IN
• PRIVACY ACHIEVED THROUGH THE COURTYARD
• THE BLOCKS CONNECTED THROUGH BRIDGES
• FACADE WITH RAW CEMENT FINISH MAKES THE BUILDING BOLD

NOTE  
  • The Owner should provide water.
  • Plan sanctions, BWSSB and KEB Temporary Deposits with bills, etc., should be owner risk.
  • Any work done other than the given specification will be extra at the market rates.
  • If any rework or demolition is due to a change in the drawing, it should be considered with mutual understanding.
  • Any objection regarding the all-around setback from neighbours needs to be solved by the owner only.
  • For All Floors, Steel for Columns, Lintel, and Roof will be a Minimum of 3.5 to 4.0 Kg Per Sft.
  • Front Elevation work will be cement work will be done by the contractor. If any cladding is required, cladding material and labour will be borne by the owner
Interior work is not included in this quote
Landscape work is not included in this quote.